+7 (903) 755 9553






















LOPATTA дизайн - работаем онлайн
Проект "Синяя птица"

+7 (903) 755 9553 

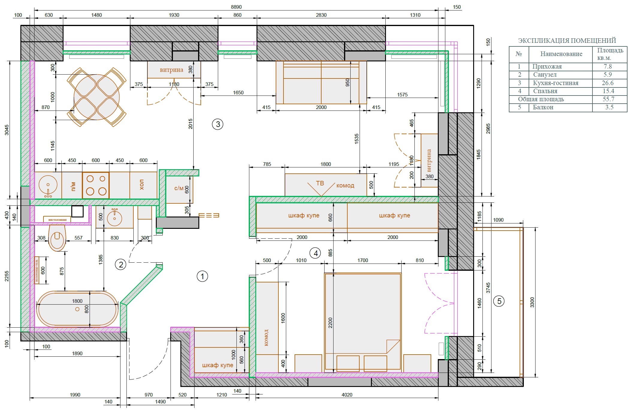
Общая площадь - 60,6 м.кв.
Гостиная  - 15 м.кв.
Кухня - 12,1 м.кв.
Спальня - 15,8 м.кв.
Балкон - 3,5 м.кв.
Санузел - 6,1 м.кв.
Прихожая и гардеробная - 8,1 м.кв.
Чистовая высота потолков - 2,9 м.

Планировка

комплектация квартиры

МЯГКАЯ И КОРПУСНАЯ МЕБЕЛЬ

ГОСТИНАЯ: Диван 3-х местный раскладной с ящиком для хранения, витрина для книг/ посуды, комод  под ТВ.

КУХНЯ: Обеденный стол и стулья, встроенная кухня с бытовой техникой, витрина для посуды/ стекла.

СПАЛЬНЯ: Кровать 160х200 с подъемным механизмом и ящиком для хранения,  комод высокий и низкий в спальне, гардеробные шкафы.

ПРИХОЖАЯ: Технический шкаф для стиральной машины и хозяйственных принадлежностей, гардеробный шкаф .

БЫТОВАЯ И КУХОННАЯ ТЕХНИКА: Телевизор LG, холодильник Атлант, Индукционная плита Electrolux, Духовой шкаф Electrolux, посудомоечная машина Delonghi, вытяжка Korting, канальный вентилятор для технической / гардеробной/ ванной комнат, стиральная машина Hotpoint Ariston с сушкой, организация сети Интернет.

САНУЗЕЛ: Зеркальный шкаф, раковина, зеркальный пенал, унитаз, 

ванна отдельностоящая, смесители/душ, полотенцесушитель.

СВЕТИЛЬНИКИ: Подвесные люстры с функцией димирования, настольные светильники, бра, встраиваемые светильники.

ШТОРЫ, ТЮЛЬ, КАРТИНЫ, ДЕКОР.

ЛОПАТА ДИЗАЙН - 
РАБОТАЕМ ОНЛАЙН