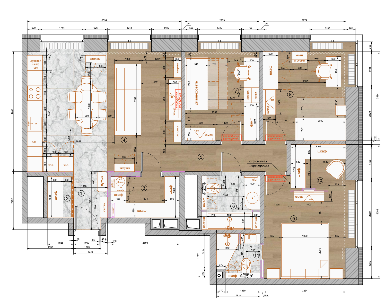
Проект "Чайковский"

ДИЗАЙН-ПРОЕКТ 
ЧЕТЫРЕХКОМНАТНОЙ КВАРТИРЫ 
Общая площадь92,2 м.кв.

Прихожая - 2,9 м2 
1 Гардеробная -  1,7 м2
2 Гардеробная - 4,4 м2
Кухня - Гостиная  - 30,3 м2 
Коридор - 4,5 м2
1 Санузел - 4,9 м2
1 Детская - 11 м2
2 Детская - 12,8 м2
Спальня - 12,7 м2
3 Гардеробная - 4,1 м2
2 Санузел - 2,9 м2
Планировочка
"Чайковский"

План расстановки мебели

92,2 м2