+7 (903) 7559553
lopatta@internet.ru
+7 (903) 7559553
lopatta@internet.ru
lopatta дизайн - работаем онлайн
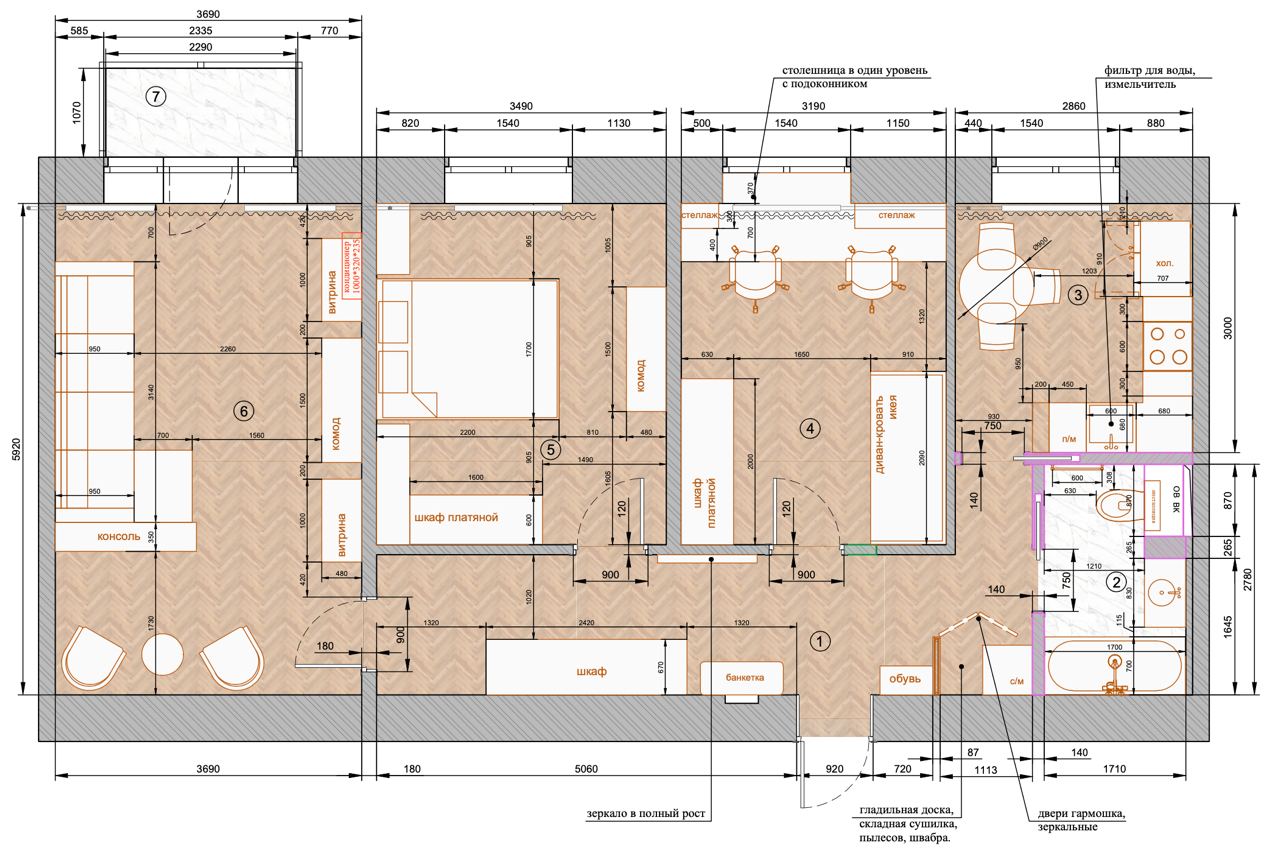
Общая площадь
76,4 м.кв.
Гостиная - 21,8 м.кв.
Спальня - 14,3 м.кв.
Детская-кабинет - 13,1 м.кв.
Кухня - 8,7 м.кв.
Санузел - 4,2 м.кв.
Балкон - 2,4 м.кв.
Прихожая и гардеробная - 14,3 м.кв.
Чистовая высота потолков - 2,9 м.
goose.by
goose.by
goose.by
goose.by
goose.by
goose.by
goose.by
goose.by
goose.by
goose.by
goose.by
goose.by
goose.by
goose.by
goose.by
goose.by
goose.by
goose.by
goose.by
goose.by
goose.by
goose.by
vghome.ru
goose.by
goose.by
goose.by
goose.by
goose.by
goose.by
goose.by
goose.by
goose.by
goose.by
goose.by
goose.by
goose.by
goose.by
goose.by
goose.by
goose.by
goose.by
goose.by
goose.by
goose.by
goose.by
goose.by
goose.by
goose.by
goose.by
goose.by
goose.by
goose.by
goose.by
goose.by
goose.by
goose.by
goose.by
goose.by
goose.by
goose.by
Планировка
76,4 м2
ИМЯ *
Телефон *
Метраж м2 *
ОСТАВИТЬ ЗАЯВКУ